Modernes Einfamilienhaus mit PV-Anlage, Pool, Kamin, EBK und 3 Bädern!
Eckdaten
- Art Einfamilienhaus
- Lage 42657 Solingen
- Kaufpreis 799.000,00 €
- Wohnfläche ca. 240 m²
- Grundstück ca. 700 m²
- Zimmer 10
- Baujahr 1910
- Nutzfläche ca. 70 m²
- Etagenzahl 3
- Denkmalschutzobjekt nein
- Heizungsart Zentralheizung
- Einbauküche ja
- Gäste-WC nein
- Stellplatztyp Aussenstellplatz, Carport
- Stellplatzanzahl 3
- Vermietet nein
- Bezugstermin Nach Vereinbarung
- Bodenbelag Fliesen, Laminat
- Ausstattung des Bades Badewanne, Dusche, Fenster
- Zustand Modernisiert
- Immobilien-ID 8502
- Provision 2,38 % inkl. MwSt.
Immobilie
Bei diesem Objekt handelt es sich um ein seit 2013 umfassend saniertes Einfamilienhaus mit Kamin, Einbauküche, Whirpool, Pool, Außenküche & Carport. Zuvor wurde das Objekt auch als 2- bzw. 3-Parteienhaus genutzt, was auch künftig wieder möglich wäre.
Es wird aktuell geprüft, ob der obere Teil des Gartens bebaut werden kann, da Nachbarn dies bereits getan haben.
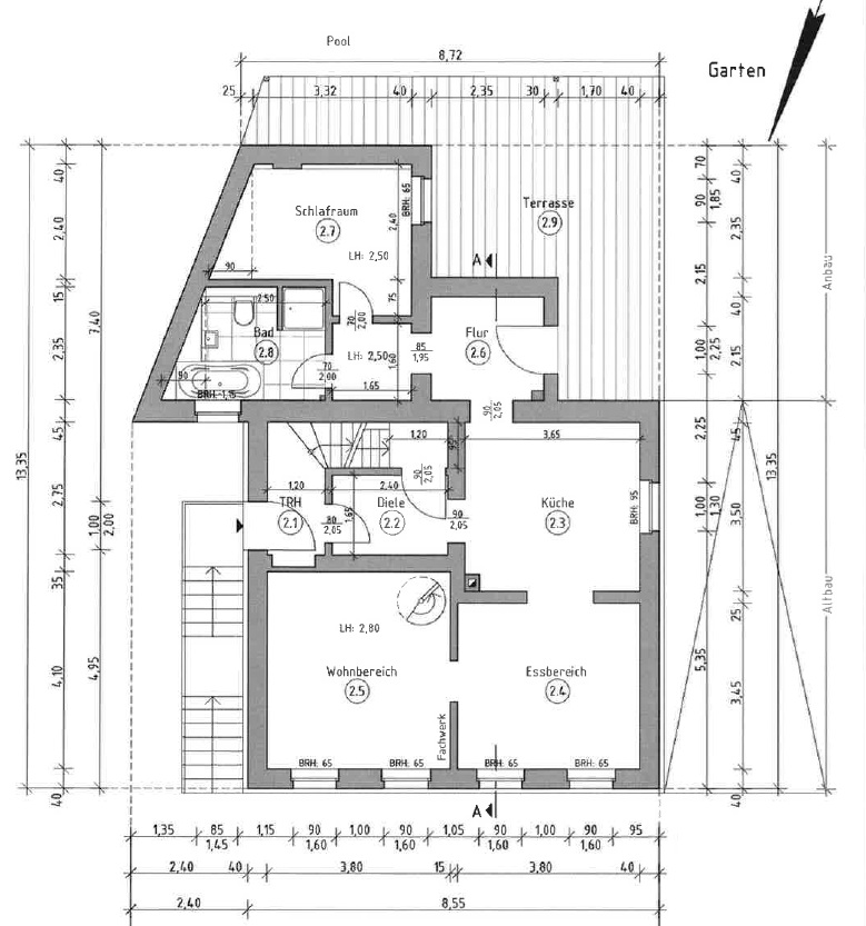
Sie betreten das Objekt und stehen in der geräumigen Diele.
Diese führt Sie in das 1.Obergeschoss, in den Keller ( auch separat von der Straße begehbar ) und in die Wohnküche.
An die Wohnküche grenzen der Wohn-Essbereich mit Kamin und die Diele. Über die Diele gelangen Sie in das Wannenbad mit Fenster, in das Gästezimmer und auf die Terrasse.
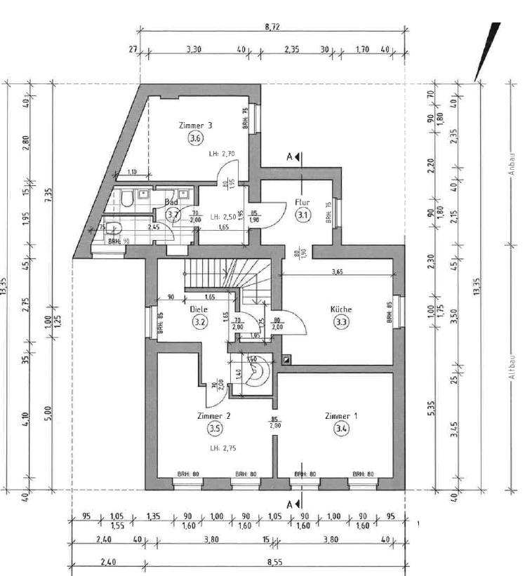
Im 1. Obergeschoss stehen Sie zunächst in der Diele.
Diese führt Sie in 2 Wohnbereiche und in das Dachgeschoss.
Wohnbereich 1 besteht aus einem Ankleidezimmer und aus einem dahinter liegenden Kinderzimmer.
Wohnbereich 2 besteht aus dem Elternschlafzimmer, einem Badezimmer und einem Ankleidezimmer.
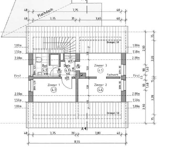
Auch im Dachgeschoss stehen Sie zunächst in der Diele.
An diese grenzen das Duschbad, ein Kinderzimmer ( ehemals Küche ) und ein weiterer Wohnbereich bestehend aus Wohnzimmer und Schlafzimmer.
Die Einbauküche, der Kaminofen, der Pool, der Whirpool, die Außenküche und der Carport sind bereits im Kaufpreis enthalten.
Auf der Rückseite sind bereits 4 leistungsfähige PV-Module zur Stromerzeugung installiert.
Der Energieausweis wird aktuell erstellt.
Lage
Das Objekt befindet sich in einem ruhigen Wohngebiet in Solingen, in einem Stadtteil, der für seine familienfreundliche Atmosphäre bekannt ist. Die Umgebung bietet zahlreiche Grünflächen und Spielplätze, perfekt für Familien mit Kindern. Einkaufsmöglichkeiten, Schulen und öffentliche Verkehrsmittel sind ebenfalls in der Nähe und gut zu Fuß erreichbar.
Solingen selbst ist eine mittelgroße Stadt in Nordrhein-Westfalen und liegt in der Nähe von Düsseldorf und Köln. Die Stadt ist für ihre traditionsreiche Schneidwarenindustrie bekannt und bietet eine Vielzahl von kulturellen und Freizeitmöglichkeiten. Mit ihren vielen Parks, Museen und Veranstaltungen ist Solingen ein attraktiver Wohnort für Familien und Berufstätige.
Die Region, in der sich die Immobilie befindet, zeichnet sich durch ihre gute Anbindung an größere Städte und ihr vielfältiges Freizeitangebot aus. Die grüne Umgebung lädt zu ausgedehnten Spaziergängen oder Fahrradtouren ein und auch kulturelle Highlights sind nicht weit entfernt. Insgesamt bietet die Region eine hohe Lebensqualität und die perfekte Mischung aus urbanem Leben und Naturerlebnis.
Ausstattung
Das Objekt ist wie folgt ausgestattet:
Gas-Zentralheizung, Warmwasser über Durchlauferhitzer, doppel-verglaste Kunststofffenster, teilweise Rollläden, Einbauküche, 3 Bäder, Kaminofen, Whirpool, Pool, Carport, Außenküche, Keller, Garten.
Sonstiges
Bitte beachten Sie das Ihnen das Exposé automatisch zugesendet wird und die Exposémail im SPAM landen kann.
Energieausweisangaben
- Heizungsart Zentralheizung
- Befeuerung / Energieträger Gas
Grundrisse
Herzlichen Dank für Ihre Anfrage.
Wir werden diese so schnell wie möglich bearbeiten.
